32 422
23 февраля 2022 в 8:00
Автор: Андрей Гомыляев. Фото: Александр Ружечка
Спецпроект

Проект «Мир-2042». Как будут выглядеть квартиры через 20 лет

Автор: Андрей Гомыляев. Фото: Александр Ружечка
Выиграй модный аэрогриль! Покупай в приложении с доставкой Príme и получай шанс выиграть аэрогриль Roome

Помните футуристичную квартирку Корбена Далласа из фильма «Пятый элемент»? Тотальный минимализм, выезжающие из стен кровать, холодильник и душевая кабина, встроенный в стену телик, он же интерком, доставка китайской еды непосредственно в окно — так в уже далеком 1997 году (когда был выпущен фильм) представляли жилье 2263-го. Мы же совместно с Samsung Galaxy S22 Ultra попробовали заглянуть в апартаменты более близкого будущего — образца 2042 года. Во-первых, число красивое; во-вторых, примерно в это время должны пойти в школу мои будущие внуки. По мнению дизайнеров, многим фишкам из фильма действительно суждено воплотиться в жизнь, а некоторые ожидаемые решения не приходили в голову даже фантастам.

Это футурологический проект о том, каким может стать мир и, в частности, Беларусь через 20 лет.

В цикле из шести статей, публикуемых одна за другой каждое утро, мы расскажем, как изменятся основные сферы жизни: города и жилье, транспорт и гаджеты, медицина и природа. В наших текстах мы будем опираться на факты, теории и гипотезы, а также прогнозы специалистов — минимум фантазии, максимум нескучного реализма.

Чтобы понять, какими будут дома и квартиры в будущем, вначале придется задуматься над вопросом, какими будут семьи, которым предстоит там жить. Демография — царица социальных наук — подсказывает: в 1960-х в Беларуси на одну женщину приходилось 2,6 ребенка, в 2019-м — 1,3. Более подробно — на графике ниже.

Тенденция изменения суммарного коэффициента рождаемости (СКР), по данным Всемирного банка, налицо. Не стоит пугаться, таков мировой тренд: в 1960-х общепланетарный СКР составлял 5 детей на одну женщину, к 2020-му это уже 2,4 ребенка. Причины этого — развитие контрацепции, женское образование, эмансипация и урбанизация (в деревне ребенок — помощник и рабочий ресурс, в городе — инвестиция и затраты).

Сторонникам теории азиатского захвата планеты можно указать на график демографии Китая: от 6 детей в 1960-х — к 1,6 в 2020-м. Стабильно высокие значения только у республик Нигер, Конго и Мали.

Предположим, что тренд на малое количество детей в семье в развитых странах сохранится. Троих и более малышей смогут позволить себе либо самые богатые, либо самые бедные. В таком случае в 2042 году будут очевидны две тенденции. Во-первых, возраст среднего гражданина подрастет (не хочется обзывать этот процесс старением населения), а вместе с ним усилится и внимание к здоровью. Ну а во-вторых, дети станут еще более невероятным сокровищем для взрослых. Как несложно предположить, вокруг этих двух ценностей и будет выстраиваться жилье. Вместе с дизайнерами студии ZROBIM architects мы пофантазировали над тем, каким же оно будет.

Районы

Лет этак 150 назад жизненное пространство полностью перевоплотилось с приходом «домашнего» электричества. В шестидесятые годы прошлого века в развитых странах люди уже обустроились, обзавелись бытовой техникой, после чего решили меньше привязываться к постоянному жилью, а больше путешествовать. Апогеем развития этой мысли стало появление шеринга недвижимости, строительство в Японии домов-ячеек, которые при переезде можно забрать с собой. Да, идея не получила широкого распространения: люди все еще любят собственность, любят владеть жильем. С развитием интернета, более частой сменой работы и, как следствие, переездами это пристрастие может ослабнуть. Скорее всего, мы будем жить в городе, в районах с определенной степенью автономности. И необязательно в собственной квартире.

По большому счету человеку за жизнь нужно три формата жилья: для молодого одиночки, для семьи с детьми и для возрастной пары. Покупать квартиру или дом при каждом новом витке социального развития — так себе история. Всеобщее стремление обзавестись собственной недвижимостью противоречит этой логике. Но нужно признать: в постсоветских странах квартира — это вклад, попытка законсервировать деньги в условиях нестабильной экономики.

Уже сейчас видны тренды. Даже Минск уходит от «спальников». Строятся жилищные комплексы с внутренним микромиром: школой/садом, кафешками, площадками для прогулок и развлечений. Во многих развитых странах довольно давно цена квадратного метра квартиры зависит не от близости к метро, а от престижности самого района и его инфраструктуры (условно говоря, земли). Города будут постепенно уходить от единого центра в стиле даунтаунов, появится больше центров локальных. Не нужно будет ехать через полгорода, чтобы попасть на работу. Офисы, спортзалы, образовательные центры будут находиться ближе к дому. Это естественный способ уйти от маятниковой миграции, которую мы сейчас продолжаем переживать каждые утро и вечер. По большому счету у Минска никогда не было своего Сити, своего Манхэттена. Судя по всему, и не будет. Разбросанные по городу группы общественных зданий, офисных многоэтажек станут ядром для жилых районов.

Один из первых примеров — ЖК «Каскад». А ему, между прочим, более 10 лет

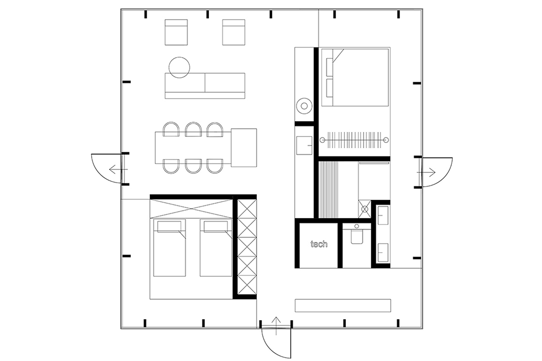
Планировка

В советское индустриальное время строили маленькие кухни с верой в то, что граждане будут питаться в столовках при заводах. В XXI веке последнее поколение родившихся в СССР стало активно сносить стену между кухней и залом/гостиной. Следующая стена, которая может рухнуть, — перегородка с детской. Ребенок — главное сокровище семьи-2042, не забыли? Его играм, его развитию родители захотят отдать больше пространства. Если вам сложно в это поверить, задумайтесь над задачкой: вас трое, ребенок учится в младших классах, вы переезжаете в новое жилье с двумя спальнями — 15 и 17 «квадратов» — с одинаковой геометрией, похожими естественным освещением и видом из окна — какую из комнат отдадите под детскую?

Зонирование квартиры может стать более размытым. Уже сегодня семья собирается отнюдь не у очага и даже не у телевизора. Эти идолы минувших эпох перестают быть точками притяжения. В последние годы появилось понятие «социальный интерьер», когда обустройство квартиры подталкивает людей к общению. Например, в гостиной можно поставить два дивана друг напротив друга, а не окружить ими экран. Оказывается, этого достаточно, чтобы забыть сакральное «Ну, что там показывают?».

В то же время ковид с «дистанционкой» подтолкнул к возникновению важной зоны, которую раньше можно было найти далеко не везде, — домашнего кабинета. Подчеркнем, речь о рабочей зоне, а не об отдельной комнате с огромным столом и библиотекой до потолка.

Не исключено, что закрытые комнаты с четырьмя стенами вообще перестанут существовать. Для квартир-студий, в которых живут одиночки, это уже актуально. В качестве примера семейного дома такого формата можно привести архитектурный проект дома-офиса в Сколково. В нем нет закрытых пространств, но любую зону можно отделить как приватную (например, спальную на ночь). В целом такое помещение воспринимается как единое пространство, которое можно обойти по периметру, не встречая стен-преград.

Многокомнатные дома большого метража останутся прихотью богатых.

Дизайн

Сейчас дизайнер работает индивидуально с клиентом. Сфера услуг как сегмент экономики повсеместно растет. Вероятно, дизайн квартир станет массовым явлением, будут продавать блок-проекты — как, например, сейчас IKEA продает готовые наборы мебели. Повысится доступность красивых вещей. Не стоит списывать со счетов и возможности 3D-принтеров, способных распечатать тумбочку по вашему индивидуальному умопомрачительному дизайну.

Говорят, миллениалы убили роскошь, а зумеры должны закопать ее окончательно. Если исходить из этой теории, нет никаких предпосылок, что мода на минимализм прекратится. Это не значит, что в 2042-м все заживут, как Корбен Даллас, в коробке с голыми стенами. Но все же трюмо или чешскую стенку в квартире будущего вы не найдете. Есть мнение, что тяга к простому и минималистичному оформлению жилья возникла из-за визуального шума. Яркая реклама, броская упаковка и зрелищные видеоролики довели до того, что человек хочет отдохнуть глазами — хотя бы дома. С такими предпосылками тренд на минимализм и освобождение пространства от привлекающих внимание мелочей сохранится. Достаточно взглянуть на проекты тех архитекторов, которых коллеги называют лучшими в сфере.

Продолжая тему минимализма: подобно тому, как кухонная техника встраивалась в мебель начиная с нулевых, сейчас уже сама мебель встраивается в стены. Грубо говоря, фасады не выделяются, а теряются в общем дизайне комнаты. Модным стало отсутствие ручек, строительство гардеробных вместо шкафов-купе — тоже как часть избавления от визуального шума. Одним словом, зонам хранения прекратят выделять много пространства, предпочитая их прятать.

Есть предположение: антивещизм, уход от культуры потребления приведут к тому, что в гардеробе взрослых будет по одной-две шмотки на каждый сезон. Развитие технологий приведет к появлению ткани, способной менять цвета и даже принты (ими и будут торговать модные дома). В таком случае вместо гардероба достаточно будет иметь одну нишу. К слову, материал, способный менять цвета, — это не заоблачная футуристика. Автомобили BMW уже так умеют.

Технологии

Еще 10 лет назад системы умных домов откровенно тупили: например, вместо того, чтобы просто отключить кондиционер, дополнительно запускали отопление. В 2020-х их работа более-менее выровнялась. Автоматические включение света, смена режима освещения, кондиционирования, управление приборами голосом, даже запуск электрочайника при входе человека в квартиру — все это уже есть. И нет никаких оснований, чтобы домашних гаджетов стало меньше. Все они завязаны на источник питания — электричество. И в этом пока основной затык. Кто хоть раз самостоятельно делал ремонт, знает эту беду: установил розетку, а после расстановки мебели оказалось, что она нужна не в этом месте, а в 30 сантиметрах левее. И что, заново штрабить стены и прокладывать кабель? Сейчас есть беспроводные зарядки для смартфонов. Если эта технология шагнет дальше, в квартирах должно появиться беспроводное питание электроприборов, а розетки исчезнут как таковые.

Каково может быть дальнейшее развитие умного дома? Очевидно, к общей смарт-системе можно подключить все, что работает или может работать от электричества. Раз есть умные одеяла и шторы, скоро будут подушки или кресла с функцией запоминания изгиба тела (это уже реализовано в автомобилях) и так далее. А к 2042 году в квартирах стоит ждать появления еще и новых датчиков. В первую очередь они будут связаны со здоровьем — такой вывод можно сделать, вспомнив понятие «старение населения» и график демографии. Датчики вполне способны дистанционно мониторить объем кислорода в помещении, температуру тела, сердечный ритм, реагировать на несчастные случаи в быту. Например, дома кто-то ударился или упал, при серьезной травме учащается сердцебиение, при критичной оно может пропасть — датчик улавливает это резкое изменение ритма и уточняет, все ли нормально. Если в ответ он слышит «Нет» или, что хуже, ответа не поступает вовсе, умный дом автоматически отправляет запрос медикам. Ну, это один из вариантов… С психическим здоровьем сложнее. Но кто мешает настроить датчик на слишком частые повышения голоса обитателей дома?

О том, какие гаджеты, упрощающие жизнь, уже изобретены, можно узнать, полистав TikTok — особенно эту тему любят корейцы. Все эти удобные штуки скоро окажутся и в вашей квартире — намного раньше, чем наступит 2042-й.


Встречайте Samsung Galaxy S22 Ultra с мощью Note.

Его тонкий алюминиевый корпус впечатляет своей совершенной формой.

А изысканные очертания основных камер как будто утопают в его гладкой поверхности.

Galaxy S22 Ultra — первый смартфон в серии Galaxy S со встроенным S Pen. Предзаказ открыт.

Спецпроект подготовлен при поддержке ООО «Самсунг Электроникс Рус Компани», ИНН 7703608910.

Наш канал в Telegram. Присоединяйтесь!

Есть о чем рассказать? Пишите в наш телеграм-бот. Это анонимно и быстро

Перепечатка текста и фотографий Onlíner без разрешения редакции запрещена. ng@onliner.by